

Цена за погонный метр (п.м.)
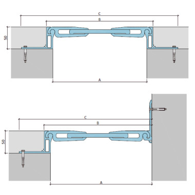
ДША.ТC-50-УГЛ/235 закладное дилатационное устройство Аквастоп
На складе
20228.00р.
- Краткое описание
Закладное дилатационное устройство Аквастоп ДША.ТC-50-УГЛ/235 – два металлических профиля с компенсаторами. Данное приспособление используется для устройства деформационных строительных швов на этапе строительных работ. Профиль используется на стыке двух перпендикулярных плит (угловое исполнение), использование этого профиля предусматривает не гидроизолирующий шов монтаж.
Рекомендуемые товары









