

На складе
4758.00р.
- Краткое описание
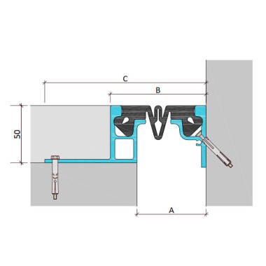
Закладной профиль для деформационного шва ДШН-50-УГЛ/090 – дилатационное устройство, производимое из высококачественного алюминия (ГОСТ). Используется для монтажа деформационных швов при строительстве дорог и парковок (профиль выдерживает эксплуатацию легковыми, грузовыми ТС). Возможная ширина деформационного шва составляет 90 миллиметров. Монтируется профиль закладным типов монтажа под финишное покрытие толщиной 50 мм.
Рекомендуемые товары








